Deutsch English

Berechnungsbeispiele aus VDI 2230-1:2014/2015

nachgerechnet mit HEXAGON SR1+ V19.8

20.02.2015 Fritz Ruoss


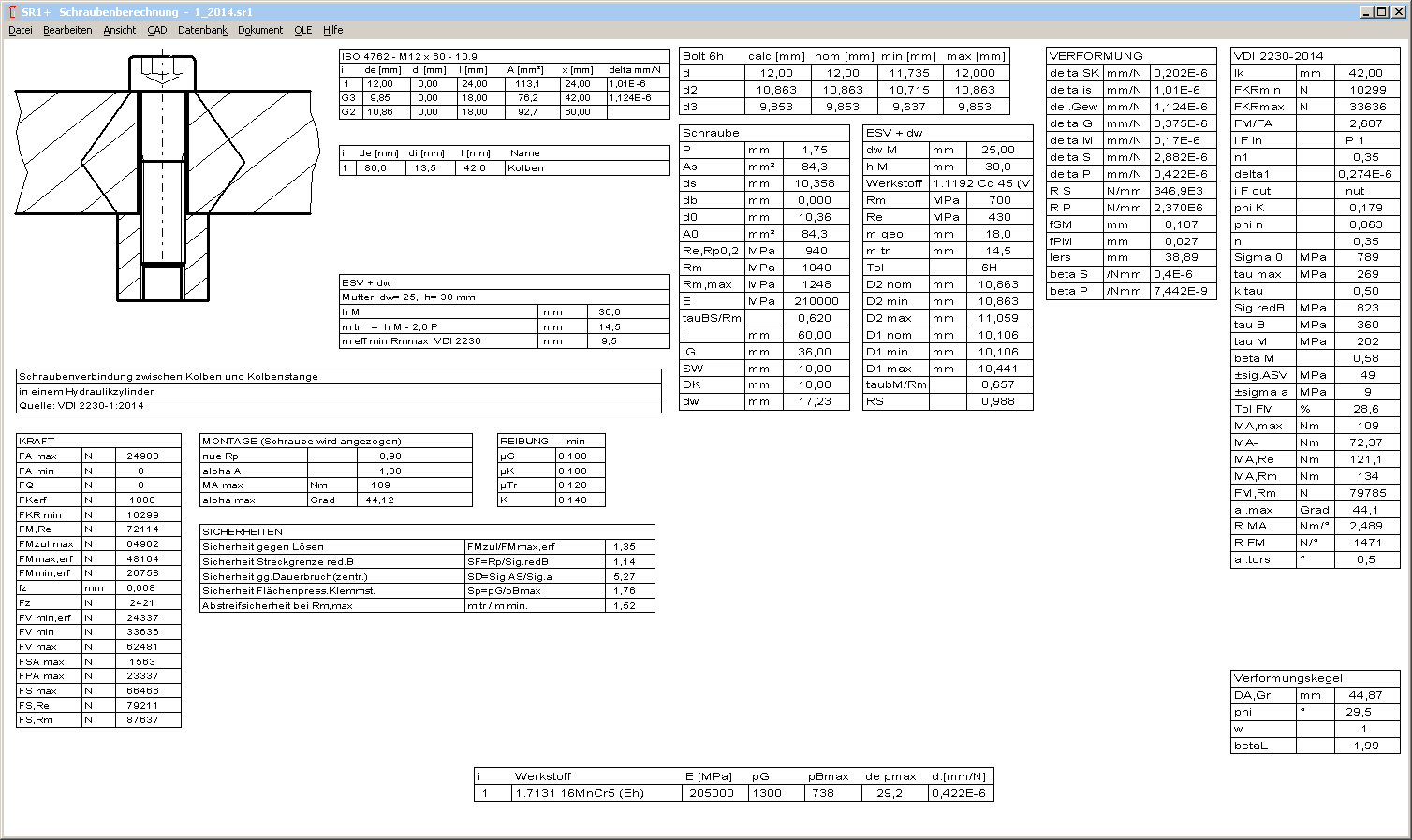
Beispiel B1: Schraubenverbindung zwischen Kolben und Kolbenstange


Beispiel B2: Schraubenverbindung einer Kupplung


Beispiel B3: Schwungradbefestigung mit Zentralschraube


Beispiel B4: Pleueldeckelverschraubung


Beispiel B5:Zylinderdeckelverschraubung